
Planung/ Realisierung 2014-2017





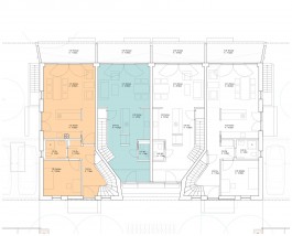
Das Quartier in München Harlaching wird von kleinen Einfamilienhäusern aus der ersten Hälfte des 20. Jahrhunderts geprägt. Für das Bauvorhaben wurden zwei benachbarte Grundstücke zusammengelegt und die beiden bestehenden Walmdachhäuser wurden durch eine neue verdichtete Bebauung ersetzt. Die Straßenfassade ist gegliedert in zwei Eckhäuser und einen dazwischengeschobenen Baukörper, der zurückversetzt angeordnet ist.


Der Neubau ähnelt auf diese Weise straßenseitig der vorherigen Bebauungsstruktur der zwei Einzelhäuser. Das mehrfach geneigte Dach fasst jedoch mit seinen Faltungen alle Gebäudeteile zusammen und betont so die Einheit als ein Gebäude. Neben den beiden Eckhäusern mit je einer Wohneinheit beherbergt der Mittelteil zwei weitere Wohneinheiten. Die Fassade öffnet sich im Südwesten mit großen Fenstern und Balkonen zur Gartenseite.



Im Inneren entwickeln sich die Wohnräume jeweils über Treppen, Lufträume und Galerieebenen vom Erdgeschoss bis ins Dachgeschoss unter die Dachflächen als Kontinuum. Als Reminiszenzen und Orte zum Verweilen wurden im Raumkontinuum einzelne restaurierte Fenster und Fenstertüren aus den Vorgängerbauten der 1920er Jahre als Innenfenster wiedereingebaut.

Vierfamilienhaus - Athener Straße München
Ort: Athener Straße München
Planung / Realisierung: 2014 – 2017
Leistungsphasen: 1-9
Bauherr: privat
Größe: 1.100 m2 BGF, 660 m2 WF

Kontakt
Aberlestr. 18
81371 München
Fon 089 .3 07 07.800
Fax 089 .3 07 07.898

Planung/ Realisierung 2014-2017





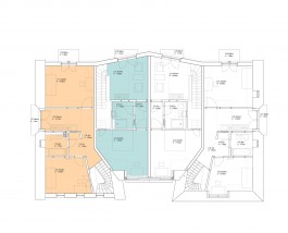
Das Quartier in München Harlaching wird von kleinen Einfamilienhäusern aus der ersten Hälfte des 20. Jahrhunderts geprägt. Für das Bauvorhaben wurden zwei benachbarte Grundstücke zusammengelegt und die beiden bestehenden Walmdachhäuser wurden durch eine neue verdichtete Bebauung ersetzt. Die Straßenfassade ist gegliedert in zwei Eckhäuser und einen dazwischengeschobenen Baukörper, der zurückversetzt angeordnet ist.


Der Neubau ähnelt auf diese Weise straßenseitig der vorherigen Bebauungsstruktur der zwei Einzelhäuser. Das mehrfach geneigte Dach fasst jedoch mit seinen Faltungen alle Gebäudeteile zusammen und betont so die Einheit als ein Gebäude. Neben den beiden Eckhäusern mit je einer Wohneinheit beherbergt der Mittelteil zwei weitere Wohneinheiten. Die Fassade öffnet sich im Südwesten mit großen Fenstern und Balkonen zur Gartenseite.



Im Inneren entwickeln sich die Wohnräume jeweils über Treppen, Lufträume und Galerieebenen vom Erdgeschoss bis ins Dachgeschoss unter die Dachflächen als Kontinuum. Als Reminiszenzen und Orte zum Verweilen wurden im Raumkontinuum einzelne restaurierte Fenster und Fenstertüren aus den Vorgängerbauten der 1920er Jahre als Innenfenster wiedereingebaut.

Vierfamilienhaus - Athener Straße München
Ort: Athener Straße München
Planung / Realisierung: 2014 – 2017
Leistungsphasen: 1-9
Bauherr: privat
Größe: 1.100 m2 BGF, 660 m2 WF

Kontakt
Aberlestr. 18
81371 München
Fon 089 .3 07 07.800
Fax 089 .3 07 07.898