Wettbewerb 2. Preis, 2021



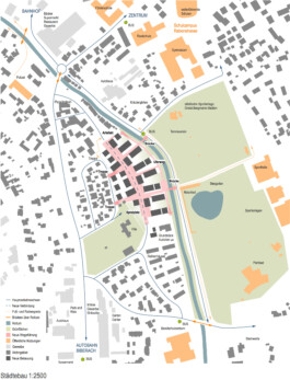
Städtebau – Einbindung und Entwicklung
Die (Re-)Integration des Fabrikgeländes in das stadträumliche Gefüge eröffnet neue Perspektiven. Auschlaggebende Entwurfsgedanken sind einerseits die sensible Einbindung und Vernetzung des Quartiers in die Umgebung und andererseits der sparsame Umgang mit Grund und Boden und damit eine zeitgemäße Dichte mit gleichzeitig hoher Wohn- und Lebensqualität.
Die Gebäudelängen und die Geschossigkeit orientieren sich am südlichen Bestand an der Spitalmühle und greifen diese auf. Das neue Quartier hat keine Rückseiten und bindet die Umgebung allseitig mit ein.








Freiraum – neue Perspektiven
Die vorhandenen Grünstrukturen im Osten und Westen werden in das Areal hinein erweitert und bieten Raum für eine großzügige Durchgrünung und die notwendigen Flächen für Versickerung/ Verdunstung. Der zentrale Erschließungsraum ist die „Adresse“ des Quartiers, ein langgezogener Platzraum, rhythmisiert durch vorspringende Gebäude und Solitärbäume, mit einheitlichem Belag.
Ein Fuß- und Radwegenetz bietet neue Wegeverbindungen an, die dem Quartier, aber auch der Umgebung dienen, so dass das zu Fuß gehen und mit dem Fahrrad fahren attraktiver wird. Zwei Brücken ermöglichen die Anbindung nach Osten zu den Schulen und den Sporteinrichtungen. Nach Westen erzeugen zwei Treppenanlagen Vernetzung mit der Nachbarschaft am Mühlrain.







© Hahn Wensch Architekten / co.mod Architekten / ayup studio
Wohnen - überschaubare und vielfältige Nachbarschaft
Es wird Geschosswohnungsbau mit hoher Wohnqualität angeboten. Jeder Wohnung sind Freiflächen unterschiedlicher Art zugeordnet: kleine Gärten, Terrassen, Balkone, Loggien, Dachgärten. Die vorgeschlagenen Wohnungen besitzen nutzungsneutrale Grundrisse und können durch ausreichend große Raumzuschnitte flexibel möbliert werden.
Die Vielfalt an Wohnungsgrundrissen ermöglicht eine durchmischte Bewohnerschaft. Die gemeinschaftlichen und privaten Räume zwischen den Gebäuden ermöglichen und fördern nachbarschaftliches Miteinander.
Durch die Verwendung unterschiedlicher Erschließungstypologien (Spänner, Laubengänge) und deren Kombination werden vielfältige räumliche Qualitäten und Wohnangebote erzeugt – u.a. auch für das Zusammenleben über mehrere Generationen.






Konstruktion und Material – nachhaltig und effizient
Die Hybridkonstruktion aus Holzrahmenbau und Recyclingbeton vermittelt optimal zwischen komplexen Anforderungen, vermeidet zukünftige Entsorgungskosten von Bausondermüll und erreicht eine Minimierung des CO2- Aufwandes. Die materialgerechte Verwendung der Baustoffe erzeugt Wirtschaftlichkeit sowohl bei Erstellung als auch im Unterhalt und sichert so die langfristige Nachhaltigkeit der Bauwerke.
Ein moderater Fensterflächenanteil sichert eine gute Belichtung, reduziert aber auch die Transmissionswärmeverluste im Winter sowie übermäßigen Wärmeeintrag im Sommer. Durch den wirksamen und robusten Sonnenschutz (Schiebeläden) der Hauptfassade wird die Hitzeresilienz weiter gesteigert. Die Verglasungen der Loggien sind durch Überhänge baulich verschattet. Ergänzend spenden Fallarmmarkisen bei tiefen Sonnenständen weiteren Schatten, ohne die Aussicht zu nehmen.


© Hahn Wensch Architekten / co.mod Architekten / ayup studio
Wohnungsbau - Laupheim
Ort: Inselstraße Laupheim, Gelände der alten Werkzeugfabrik
Wettbewerb: 2021, 2. Preis
Auslober: Steffen Ripple in Abstimmung mit Stadt Laupheim
Größe: 25.000 m2 BGF
Arbeitsgemeinschaft mit co.mod Architekten, München
Landschaftsarchitektur von Lex-Kerfers Landschaftsarchitekten, Bockhorn
Kontakt
Aberlestr. 18
81371 München
Fon 089 .3 07 07.800
Fax 089 .3 07 07.898
Wettbewerb 2. Preis, 2021



Städtebau – Einbindung und Entwicklung
Die (Re-)Integration des Fabrikgeländes in das stadträumliche Gefüge eröffnet neue Perspektiven. Auschlaggebende Entwurfsgedanken sind einerseits die sensible Einbindung und Vernetzung des Quartiers in die Umgebung und andererseits der sparsame Umgang mit Grund und Boden und damit eine zeitgemäße Dichte mit gleichzeitig hoher Wohn- und Lebensqualität.
Die Gebäudelängen und die Geschossigkeit orientieren sich am südlichen Bestand an der Spitalmühle und greifen diese auf. Das neue Quartier hat keine Rückseiten und bindet die Umgebung allseitig mit ein.








Freiraum – neue Perspektiven
Die vorhandenen Grünstrukturen im Osten und Westen werden in das Areal hinein erweitert und bieten Raum für eine großzügige Durchgrünung und die notwendigen Flächen für Versickerung/ Verdunstung. Der zentrale Erschließungsraum ist die „Adresse“ des Quartiers, ein langgezogener Platzraum, rhythmisiert durch vorspringende Gebäude und Solitärbäume, mit einheitlichem Belag.
Ein Fuß- und Radwegenetz bietet neue Wegeverbindungen an, die dem Quartier, aber auch der Umgebung dienen, so dass das zu Fuß gehen und mit dem Fahrrad fahren attraktiver wird. Zwei Brücken ermöglichen die Anbindung nach Osten zu den Schulen und den Sporteinrichtungen. Nach Westen erzeugen zwei Treppenanlagen Vernetzung mit der Nachbarschaft am Mühlrain.







© Hahn Wensch Architekten / co.mod Architekten / ayup studio
Wohnen - überschaubare und vielfältige Nachbarschaft
Es wird Geschosswohnungsbau mit hoher Wohnqualität angeboten. Jeder Wohnung sind Freiflächen unterschiedlicher Art zugeordnet: kleine Gärten, Terrassen, Balkone, Loggien, Dachgärten. Die vorgeschlagenen Wohnungen besitzen nutzungsneutrale Grundrisse und können durch ausreichend große Raumzuschnitte flexibel möbliert werden.
Die Vielfalt an Wohnungsgrundrissen ermöglicht eine durchmischte Bewohnerschaft. Die gemeinschaftlichen und privaten Räume zwischen den Gebäuden ermöglichen und fördern nachbarschaftliches Miteinander.
Durch die Verwendung unterschiedlicher Erschließungstypologien (Spänner, Laubengänge) und deren Kombination werden vielfältige räumliche Qualitäten und Wohnangebote erzeugt – u.a. auch für das Zusammenleben über mehrere Generationen.






Konstruktion und Material – nachhaltig und effizient
Die Hybridkonstruktion aus Holzrahmenbau und Recyclingbeton vermittelt optimal zwischen komplexen Anforderungen, vermeidet zukünftige Entsorgungskosten von Bausondermüll und erreicht eine Minimierung des CO2- Aufwandes. Die materialgerechte Verwendung der Baustoffe erzeugt Wirtschaftlichkeit sowohl bei Erstellung als auch im Unterhalt und sichert so die langfristige Nachhaltigkeit der Bauwerke.
Ein moderater Fensterflächenanteil sichert eine gute Belichtung, reduziert aber auch die Transmissionswärmeverluste im Winter sowie übermäßigen Wärmeeintrag im Sommer. Durch den wirksamen und robusten Sonnenschutz (Schiebeläden) der Hauptfassade wird die Hitzeresilienz weiter gesteigert. Die Verglasungen der Loggien sind durch Überhänge baulich verschattet. Ergänzend spenden Fallarmmarkisen bei tiefen Sonnenständen weiteren Schatten, ohne die Aussicht zu nehmen.


© Hahn Wensch Architekten / co.mod Architekten / ayup studio
Wohnungsbau - Laupheim
Ort: Inselstraße Laupheim, Gelände der alten Werkzeugfabrik
Wettbewerb: 2021, 2. Preis
Auslober: Steffen Ripple in Abstimmung mit Stadt Laupheim
Größe: 25.000 m2 BGF
Arbeitsgemeinschaft mit co.mod Architekten, München
Landschaftsarchitektur von Lex-Kerfers Landschaftsarchitekten, Bockhorn
Kontakt
Aberlestr. 18
81371 München
Fon 089 .3 07 07.800
Fax 089 .3 07 07.898