
Wettbewerb 2018

Städtebau und Außenanlagen
Die neue Kindertagesstätte befindet sich inmitten des Zentrums der Evang.-Luth. Kirchengemeinde Bad Staffelstein. Der Neubau ist als Pavillon konzipiert. Durch die freie Gebäudeform wird der eigenständige Charakter des Kinderhauses gestärkt und der umliegende Außenraum gestaltet. Im Garten der Kita entstehen Spielzimmer, die unterschiedlich ausgestattet und von Hecken räumlich gefasst werden.






Geometrie und Konstruktion
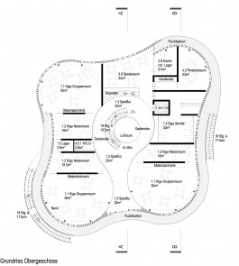
Die Grundrissgeometrie basiert auf vier unterschiedlich großen Kreisen, die lose um die Gebäudemitte angeordnet sind. Jeder der vier Kreise bildet ein eigenes Haus im Haus für eine spezifische Nutzergruppe. Die Primärstruktur - Decken, Stützen und orthogonale Wände - sind als Ortbetonkonstruktion konzipiert. Diese werden durch die äußeren und inneren geschwungenen Fassaden aus Holz kontrastiert.



Nutzungsverteilung
Die Kita ist kompakt auf zwei Hauptgeschossen organisiert, die über einen zentralen Treppenraum verbunden sind. Im EG befinden sich die Krippengruppen. Der Mehrzweckraum orientiert sich zum Kirchplatz. Um den großzügigen Spielflur im OG sind die Kindergartengruppen angeordnet. Der Dachgarten erhält ein Holzdeck, das in einer hohen Gräserpflanzung eingebettet liegt. Große Sonnenschirme spenden ausreichend Schatten.

Kindertagesstätte - Bad Staffelstein
Ort: Georg-Herpich-Platz Bad Staffelstein
Wettbewerb: 2018
Auslober: Evang.-Luth. Kirchengemeinde Bad Staffelstein
Größe: 830 m2BGF
Arbeitsgemeinschaft mit Morhard Architektur + Sachverständigen Büro, Lichtenfels Ofr.
Landschaftsarchitektur von NMM [Nicole M. Meier] LandschaftsArchitektur, München
Modellbau Matthes Max Modellbau GmbH, München

Kontakt
Aberlestr. 18
81371 München
Fon 089 .3 07 07.800
Fax 089 .3 07 07.898

Wettbewerb 2018

Städtebau und Außenanlagen
Die neue Kindertagesstätte befindet sich inmitten des Zentrums der Evang.-Luth. Kirchengemeinde Bad Staffelstein. Der Neubau ist als Pavillon konzipiert. Durch die freie Gebäudeform wird der eigenständige Charakter des Kinderhauses gestärkt und der umliegende Außenraum gestaltet. Im Garten der Kita entstehen Spielzimmer, die unterschiedlich ausgestattet und von Hecken räumlich gefasst werden.






Geometrie und Konstruktion
Die Grundrissgeometrie basiert auf vier unterschiedlich großen Kreisen, die lose um die Gebäudemitte angeordnet sind. Jeder der vier Kreise bildet ein eigenes Haus im Haus für eine spezifische Nutzergruppe. Die Primärstruktur - Decken, Stützen und orthogonale Wände - sind als Ortbetonkonstruktion konzipiert. Diese werden durch die äußeren und inneren geschwungenen Fassaden aus Holz kontrastiert.



Nutzungsverteilung
Die Kita ist kompakt auf zwei Hauptgeschossen organisiert, die über einen zentralen Treppenraum verbunden sind. Im EG befinden sich die Krippengruppen. Der Mehrzweckraum orientiert sich zum Kirchplatz. Um den großzügigen Spielflur im OG sind die Kindergartengruppen angeordnet. Der Dachgarten erhält ein Holzdeck, das in einer hohen Gräserpflanzung eingebettet liegt. Große Sonnenschirme spenden ausreichend Schatten.

Kindertagesstätte - Bad Staffelstein
Ort: Georg-Herpich-Platz Bad Staffelstein
Wettbewerb: 2018
Auslober: Evang.-Luth. Kirchengemeinde Bad Staffelstein
Größe: 830 m2BGF
Arbeitsgemeinschaft mit Morhard Architektur + Sachverständigen Büro, Lichtenfels Ofr.
Landschaftsarchitektur von NMM [Nicole M. Meier] LandschaftsArchitektur, München
Modellbau Matthes Max Modellbau GmbH, München

Kontakt
Aberlestr. 18
81371 München
Fon 089 .3 07 07.800
Fax 089 .3 07 07.898