2023-2025

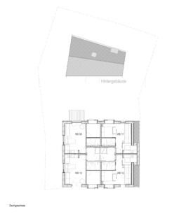
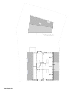
Im historischen Ortskern von Stuttgart-Degerloch wird auf einem 550 m2 großen Grundstück ein Micro-Apartment-Haus als Vordergebäude und im rückwärtigen Grundstücksteil ein Tiny House geplant.








Das Vordergebäude wird aus kontextuellen Gründen als verputzter Massivbau ausgeführt. Somit integriert sich das neue Gebäude harmonisch in das Straßenbild. Das Tiny House im Hof mit seiner eigenen formalen Ausbildung erhält eine Kork-Fassade. Die Dächer beider Gebäude werden aus energetischen Gründen vollflächig mit Photovoltaik belegt.


Micro-Aprtments, Stuttgart-Degerloch
Ort: Karl-Pfaff-Straße, Stuttgart-Degerloch
Planung: 2023-2025
Leistungsphasen: 1-4
Auftraggeber: privat
Größe: BGF 1.111 m2, WF 462 m2, 13 Wohnungen
Kontakt
Aberlestr. 18
81371 München
Fon 089 .3 07 07.800
Fax 089 .3 07 07.898
2023-2025

Im historischen Ortskern von Stuttgart-Degerloch wird auf einem 550 m2 großen Grundstück ein Micro-Apartment-Haus als Vordergebäude und im rückwärtigen Grundstücksteil ein Tiny House geplant.








Das Vordergebäude wird aus kontextuellen Gründen als verputzter Massivbau ausgeführt. Somit integriert sich das neue Gebäude harmonisch in das Straßenbild. Das Tiny House im Hof mit seiner eigenen formalen Ausbildung erhält eine Kork-Fassade. Die Dächer beider Gebäude werden aus energetischen Gründen vollflächig mit Photovoltaik belegt.


Kommunaler Wohnungsbau - Wohnen Mitten im Ort
Ort: Betzigau
Planung: WB 1.Platz, Planung 2023-2026
Leistungsphasen: 1-9, LPH4 in Bearbeitung
Auftraggeber: Gemeinde Betzigau
Größe: 18 WE, BGF 4.723,00 m2
Freianlagenplanung von NMM [Nicole M. Meier] LandschaftsArchitektur
Kontakt
Aberlestr. 18
81371 München
Fon 089 .3 07 07.800
Fax 089 .3 07 07.898