Wettbewerb 3. Preis, 2020

Ein Nachbarschaftshof für Burgrain
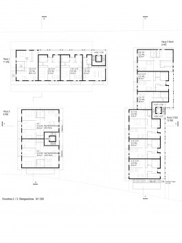
Das neue Ensemble bietet nicht nur Wohnraum — sondern Lebensraum. In Anlehnung an die Typologie des Dreiseithofs einerseits und die Geschichte Burgrains als Siedlungsstandort andererseits erzeugt die städtebauliche Setzung der Wohnzeilen zueinander eine geschützte, nachhaltige und attraktive Nachbarschaft. Das Erscheinungsbild mit Holzverkleidung und Satteldach stellt sich bewusst in die örtliche Gestaltungstradition, ist aber durch Vorfertigung und klare Detailierung dezidiert zeitgenössisch.

Der Loisachhof als offenes Nachbarschaftszentrum
Das zentrale Element der Freianlagen bildet der von den drei Gebäuden umrahmte Innenhof, der als Kommunikationsort und Treffpunkt der Wohnanlage dient; er verbindet das Ensemble durch gezielte Durchwegung nach Norden zum benachbarten Wohngebiet, und öffnet sich gezielt nach Süden zur Loisach und dem Naherholungsgebiet. Der nördliche Zugang aus Richtung Steigfeldstraße führt den Besucher, begleitet von einer Baumreihe und Pflanzfläche, über Stufen oder die barrierefreie Rampe in die Mitte der Anlage.






Schallschutz
Das Wettbewerbsgebiet ist erheblichen Lärmeinwirkungen insbesondere von der östlich gelegenen Bahnlinie ausgesetzt. Besonders laute Geräusche entstehen im Süden beim Befahren der Loisachbrücke. Der Entwurf sieht den Schallschutz städtebaulich, architektonisch und technisch vor. Die Nord-Süd Orientierung von Haus 3 bildet eine Barriere zur Emissionsquelle Bahn; der höhere Südteil des Hauses schützt zudem vor Lärm-Immission von der Brücke. Die effiziente Erschließung über den witterungsgeschützen Laubengang bildet zusammen mit der Schicht der Nutzräume nach Osten in den Wohnungen eine Zonierung gegen den Lärm.




© Hahn Wensch Architekten und NICOLAI BECKER IMAGES
Konstruktion und Material
Ressourcenschonendes Bauen wird hier nicht nur technisch, sondern auch strukturell und sozial umgesetzt. Die Hybridkonstruktion aus Recyclingbeton und Holzrahmenbau vermittelt optimal zwischen komplexen Anforderungen (Hochwasser, Brandschutz, Schallschutz, Wirtschaftlichkeit und Erscheinungsbild) und vermeidet zukünftige Entsorgungskosten von Bausondermüll. Low- und Hightech werden hier umsichtig eingesetzt und nachhaltig verbunden. Dank der vorgefertigten Holztafelbauweise in Schottenstruktur auf neutralem Raster können unterschiedliche Wohnungsgrößen erzeugt und kombiniert werden.




Energetisches Konzept
Die Verwendung von Recycling-Beton und vorfabrizierter Holzrahmenbauweise minimiert die aufgewandte Energie und den CO2-Aufwand für die Erstellung. Wir schlagen eine gasbetriebene Grundwasserwärmepumpe zur nachhaltigen Wärmeerzeugung vor. Die Gaswärmepumpe nutzt neben dem Gas auch die Umweltwärme aus dem Grundwasser. Durch die Nutzung regenerativer Energie wird der CO2-Ausstoß gegenüber reiner Brennwerttechnik um weitere 20-30 % reduziert. Die Beheizung der Wohnräume erfolgt durch eine Heizplattenvorsatzschale auf der Innenseite der Außenwand.



© Hahn Wensch Architekten und NICOLAI BECKER IMAGES
Wohnanlage - Burgrain
Ort: Steigfeldstraße, Garmisch-Partenkirchen Ortsteil Burgrain
Wettbewerb: 2020, 3. Preis
Auslober: Markt Garmisch-Partenkirchen
Größe: 38 Wohneinheiten, 4.000 m2 BGF
Landschaftsarchitektur von NMM [Nicole M. Meier] LandschaftsArchitektur, München
Kontakt
Aberlestr. 18
81371 München
Fon 089 .3 07 07.800
Fax 089 .3 07 07.898
Wettbewerb 3. Preis, 2020

Ein Nachbarschaftshof für Burgrain
Das neue Ensemble bietet nicht nur Wohnraum — sondern Lebensraum. In Anlehnung an die Typologie des Dreiseithofs einerseits und die Geschichte Burgrains als Siedlungsstandort andererseits erzeugt die städtebauliche Setzung der Wohnzeilen zueinander eine geschützte, nachhaltige und attraktive Nachbarschaft. Das Erscheinungsbild mit Holzverkleidung und Satteldach stellt sich bewusst in die örtliche Gestaltungstradition, ist aber durch Vorfertigung und klare Detailierung dezidiert zeitgenössisch.

Der Loisachhof als offenes Nachbarschaftszentrum
Das zentrale Element der Freianlagen bildet der von den drei Gebäuden umrahmte Innenhof, der als Kommunikationsort und Treffpunkt der Wohnanlage dient; er verbindet das Ensemble durch gezielte Durchwegung nach Norden zum benachbarten Wohngebiet, und öffnet sich gezielt nach Süden zur Loisach und dem Naherholungsgebiet. Der nördliche Zugang aus Richtung Steigfeldstraße führt den Besucher, begleitet von einer Baumreihe und Pflanzfläche, über Stufen oder die barrierefreie Rampe in die Mitte der Anlage.






Schallschutz
Das Wettbewerbsgebiet ist erheblichen Lärmeinwirkungen insbesondere von der östlich gelegenen Bahnlinie ausgesetzt. Besonders laute Geräusche entstehen im Süden beim Befahren der Loisachbrücke. Der Entwurf sieht den Schallschutz städtebaulich, architektonisch und technisch vor. Die Nord-Süd Orientierung von Haus 3 bildet eine Barriere zur Emissionsquelle Bahn; der höhere Südteil des Hauses schützt zudem vor Lärm-Immission von der Brücke. Die effiziente Erschließung über den witterungsgeschützen Laubengang bildet zusammen mit der Schicht der Nutzräume nach Osten in den Wohnungen eine Zonierung gegen den Lärm.




© Hahn Wensch Architekten und NICOLAI BECKER IMAGES
Konstruktion und Material
Ressourcenschonendes Bauen wird hier nicht nur technisch, sondern auch strukturell und sozial umgesetzt. Die Hybridkonstruktion aus Recyclingbeton und Holzrahmenbau vermittelt optimal zwischen komplexen Anforderungen (Hochwasser, Brandschutz, Schallschutz, Wirtschaftlichkeit und Erscheinungsbild) und vermeidet zukünftige Entsorgungskosten von Bausondermüll. Low- und Hightech werden hier umsichtig eingesetzt und nachhaltig verbunden. Dank der vorgefertigten Holztafelbauweise in Schottenstruktur auf neutralem Raster können unterschiedliche Wohnungsgrößen erzeugt und kombiniert werden.




Energetisches Konzept
Die Verwendung von Recycling-Beton und vorfabrizierter Holzrahmenbauweise minimiert die aufgewandte Energie und den CO2-Aufwand für die Erstellung. Wir schlagen eine gasbetriebene Grundwasserwärmepumpe zur nachhaltigen Wärmeerzeugung vor. Die Gaswärmepumpe nutzt neben dem Gas auch die Umweltwärme aus dem Grundwasser. Durch die Nutzung regenerativer Energie wird der CO2-Ausstoß gegenüber reiner Brennwerttechnik um weitere 20-30 % reduziert. Die Beheizung der Wohnräume erfolgt durch eine Heizplattenvorsatzschale auf der Innenseite der Außenwand.



© Hahn Wensch Architekten und NICOLAI BECKER IMAGES
Wohnanlage - Burgrain
Ort: Steigfeldstraße, Garmisch-Partenkirchen Ortsteil Burgrain
Wettbewerb: 2020, 3. Preis
Auslober: Markt Garmisch-Partenkirchen
Größe: 38 Wohneinheiten, 4.000 m2 BGF
Landschaftsarchitektur von NMM [Nicole M. Meier] LandschaftsArchitektur, München
Kontakt
Aberlestr. 18
81371 München
Fon 089 .3 07 07.800
Fax 089 .3 07 07.898