Wettbewerb Anerkennung, 2020


Städtebau - Platz für Generationen
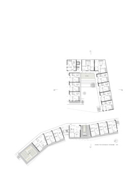
Der neue Quartiersplatz liegt als Auftakt und zukünftige Mitte der neuen Überbauungen an der Etterschlager Straße.
Er spannt sich zwischen Kirche und Pfarrsaal auf und wird im Westen ergänzend vom Neubau gefasst. Durch die Wegeverbindung und Aufwertung nach Osten bindet der Platz auch das zukünftige Wohngebiet Am Teilsrain mit an. Der neue Gebäudemäander beinhaltet auf zwei bzw. drei Geschossen kompakt das Raumprogramm. Die Baukörper sind zum See hin gezielt terrassiert und gliedern sich dadurch in die Landschaft sowie den Baubestand differenziert ein.






Wohnungen - großzügig, nutzbar und flexibel
Alle Wohnungen sind vollständig barrierefrei nach DIN 18040-2 und verfügen über großzügige Loggien. Die maximal mögliche Anzahl der sichtgeschützen Aussenräume ist nach Süden bzw. Westen orientiert, ein erheblicher Teil wird eine Blickmöglichkeit zum Wörthsee erhalten. Die Wohn-/ Schlafraumseite besitzt vollkommene Privatheit. Die Orientierung der Küchen bzw. Essplätze zur Laubengangseite bietet die Möglichkeit zur Kommunikation und Partizipation an den Vorgängen außerhalb der Wohnung. Die Wohnungen besitzen nutzungsneutrale Grundrisse und können durch ausreichend große Raumzuschnitte flexibel möbliert werden. Für Schrankmöbel sind Einbauzonen vorgesehen.








© Hahn Wensch Architekten
Dachflächen - Ökologie und Integration
Die Dachbegrünung des Wohnmäanders mit Wildblumen und Wildgräsern bietet nicht nur Versickerungsflächen und klimatischen Ausgleich durch Verdunstung im Sommer, sondern auch die landschaftliche Anbindung und Aufsicht parallel zur Staffelung des Terrains im Schnittprofil hinunter zum See.
Teile der Dächer sind als Kollektorflächen (Warmwassererzeugung) vorgesehen und ergänzen die vorgegebene Energieerzeugung mit Gas um einen regenerativen Anteil. Ebenso ist die Integration von Photovoltaik möglich.






Konstruktion - Nachhaltigkeit und Effizienz
Die Tragstruktur des Gebäudemäanders wird in einer Stahlbeton-Schottenbauweise erstellt. Durch den seriellen Charakter der Grundrisse kann ein Großteil der Bauteile teilvorgefertigt werden. Die elementierte Holzfassade kommt in wirtschaftlichen Großtafeln auf die Baustelle. Die Laubengänge werden als Betonfertigteile angeliefert und sind oberflächenfertig, wartungsarm und dauerhaft robust.
Die sinnfällige und materialgerechte Verwendung der Baustoffe erzeugt Wirtschaftlichkeit sowohl bei der Erstellung als auch im Unterhalt. Das Zusammenspiel von mineralischen Oberflächen in den Laubengängen und beim Gebäudesockel und Holzverkleidungen in den Fassaden der Obergeschosse erzeugt eine stimmige und abwechslungsreiche Erscheinung der geplanten Baukörper.

Wohnen am Quartiersplatz - Gemeinde Wörthsee
Ort: Etterschlagerstraße, Steinebach Wörthsee
Wettbewerb: 2020, Anerkennung
Ausloberin: Gemeinde Wörthsee
Größe: 46 Wohneinheiten, 6.500 m2 BGF
Landschaftsarchitektur von Schläpfer Carstensen Landschaftsarchitekten GmbH Zürich
Kontakt
Aberlestr. 18
81371 München
Fon 089 .3 07 07.800
Fax 089 .3 07 07.898
Wettbewerb Anerkennung, 2020


Städtebau - Platz für Generationen
Der neue Quartiersplatz liegt als Auftakt und zukünftige Mitte der neuen Überbauungen an der Etterschlager Straße.
Er spannt sich zwischen Kirche und Pfarrsaal auf und wird im Westen ergänzend vom Neubau gefasst. Durch die Wegeverbindung und Aufwertung nach Osten bindet der Platz auch das zukünftige Wohngebiet Am Teilsrain mit an. Der neue Gebäudemäander beinhaltet auf zwei bzw. drei Geschossen kompakt das Raumprogramm. Die Baukörper sind zum See hin gezielt terrassiert und gliedern sich dadurch in die Landschaft sowie den Baubestand differenziert ein.






Wohnungen - großzügig, nutzbar und flexibel
Alle Wohnungen sind vollständig barrierefrei nach DIN 18040-2 und verfügen über großzügige Loggien. Die maximal mögliche Anzahl der sichtgeschützen Aussenräume ist nach Süden bzw. Westen orientiert, ein erheblicher Teil wird eine Blickmöglichkeit zum Wörthsee erhalten. Die Wohn-/ Schlafraumseite besitzt vollkommene Privatheit. Die Orientierung der Küchen bzw. Essplätze zur Laubengangseite bietet die Möglichkeit zur Kommunikation und Partizipation an den Vorgängen außerhalb der Wohnung. Die Wohnungen besitzen nutzungsneutrale Grundrisse und können durch ausreichend große Raumzuschnitte flexibel möbliert werden. Für Schrankmöbel sind Einbauzonen vorgesehen.








© Hahn Wensch Architekten
Dachflächen - Ökologie und Integration
Die Dachbegrünung des Wohnmäanders mit Wildblumen und Wildgräsern bietet nicht nur Versickerungsflächen und klimatischen Ausgleich durch Verdunstung im Sommer, sondern auch die landschaftliche Anbindung und Aufsicht parallel zur Staffelung des Terrains im Schnittprofil hinunter zum See.
Teile der Dächer sind als Kollektorflächen (Warmwassererzeugung) vorgesehen und ergänzen die vorgegebene Energieerzeugung mit Gas um einen regenerativen Anteil. Ebenso ist die Integration von Photovoltaik möglich.






Konstruktion - Nachhaltigkeit und Effizienz
Die Tragstruktur des Gebäudemäanders wird in einer Stahlbeton-Schottenbauweise erstellt. Durch den seriellen Charakter der Grundrisse kann ein Großteil der Bauteile teilvorgefertigt werden. Die elementierte Holzfassade kommt in wirtschaftlichen Großtafeln auf die Baustelle. Die Laubengänge werden als Betonfertigteile angeliefert und sind oberflächenfertig, wartungsarm und dauerhaft robust.
Die sinnfällige und materialgerechte Verwendung der Baustoffe erzeugt Wirtschaftlichkeit sowohl bei der Erstellung als auch im Unterhalt. Das Zusammenspiel von mineralischen Oberflächen in den Laubengängen und beim Gebäudesockel und Holzverkleidungen in den Fassaden der Obergeschosse erzeugt eine stimmige und abwechslungsreiche Erscheinung der geplanten Baukörper.

Wohnen am Quartiersplatz - Gemeinde Wörthsee
Ort: Etterschlagerstraße, Steinebach Wörthsee
Wettbewerb: 2020, Anerkennung
Ausloberin: Gemeinde Wörthsee
Größe: 46 Wohneinheiten, 6.500 m2 BGF
Landschaftsarchitektur von Schläpfer Carstensen Landschaftsarchitekten GmbH Zürich
Kontakt
Aberlestr. 18
81371 München
Fon 089 .3 07 07.800
Fax 089 .3 07 07.898