Planung/ Ausführung 2019-2021





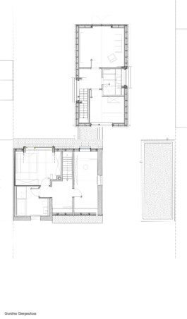
Geplant werden der Umbau und die Modernisierung einer Doppelhaushälfte Baujahr 1926 und ein gartenseitiger Anbau in hohem Standard. Die beiden Gebäudeteile werden durch einen Koppelbau im Erd- und Untergeschoss verbunden.
Sowohl der Bestand als auch der Anbau besitzen ein Untergeschoss, Erdgeschoss und Dachgeschoss. Das Gebäude besteht aus einer Nutzungseinheit und hat die Gebäudeklasse II. Die Garage bildet einen getrennten Baukörper als Grenzbebauung entlang der östlichen Grundstücksgrenze. Dem Anbau angelagert befinden sich im Nordwesten eine Terrasse.












Umbau und Anbau Wohnhaus - München
Ort: München
Planung: 2019-2021
Leistungsphasen: 1-7
Auftraggeber: privat
Größe: 272 m2 BGF, 189 m2 WF
Freianlagenplanung von Eva Weber Landschaftsarchitektin
©Fotos: Frank Schroth Fotografie
Kontakt
Aberlestr. 18
81371 München
Fon 089 .3 07 07.800
Fax 089 .3 07 07.898
Planung/ Ausführung 2019-2021





Geplant werden der Umbau und die Modernisierung einer Doppelhaushälfte Baujahr 1926 und ein gartenseitiger Anbau in hohem Standard. Die beiden Gebäudeteile werden durch einen Koppelbau im Erd- und Untergeschoss verbunden.
Sowohl der Bestand als auch der Anbau besitzen ein Untergeschoss, Erdgeschoss und Dachgeschoss. Das Gebäude besteht aus einer Nutzungseinheit und hat die Gebäudeklasse II. Die Garage bildet einen getrennten Baukörper als Grenzbebauung entlang der östlichen Grundstücksgrenze. Dem Anbau angelagert befinden sich im Nordwesten eine Terrasse.












Umbau und Anbau Wohnhaus - München
Ort: München
Planung: 2019-2021
Leistungsphasen: 1-7
Auftraggeber: privat
Größe: 272 m2 BGF, 189 m2 WF
Freianlagenplanung von Eva Weber Landschaftsarchitektin
©Fotos: Frank Schroth Fotografie
Kontakt
Aberlestr. 18
81371 München
Fon 089 .3 07 07.800
Fax 089 .3 07 07.898