Mehrfachbeauftragung 2021


Städtebauliche Einfügung
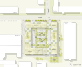
Die Gewerbeansiedlung Feuerbach Ost hat die Chance, sich durch die jüngsten Immobilieninvestitionen zu einem lebendigen Büro- und Gewerbestandort zu entwickeln. Der Standort besitzt den Charme hoher baulicher Dichte in direktem Kontrast zu den sanften grünen Weinberghügeln im Nordosten, eine Dualität, die prägend für Stuttgart ist und den besonderen Charakter des Stadtbilds ausmacht. Diese Qualitäten – hochverdichtete, kompakte Bebauung auf der einen Seite und eine üppige Kulturlandschaft auf der anderen Seite – werden in unserem Entwurf in Form einer gebauten Topografie programmatisch herausgearbeitet.










Erschließung / Nutzungsverteilung
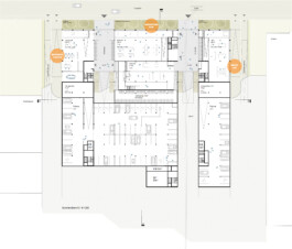
Herzstück der Anlage ist die über der Produktions- und Laborzone angeordnete große ‚Grüne Plattform‘, an die alle Treppenkerne angeschlossen sind und die insbesondere an warmen Tagen zur Mittagszeit zum lebendigen Marktplatz wird. Die ebenfalls auf diesem Niveau angeordnete Mitarbeiter-Kantine mit Außengastronomie wird zugleich Pausentreff und Geheimtipp für die umgebenden Gewerbebetriebe und Firmen.







© Auer Weber / Hahn Wensch Architekten / Jonas Bloch
Architektonisches Konzept
Die Volumina zusammenfassendes, Ordnung gebendes Element ist ein großformatiges Rahmenwerk, das sich über die gesamten Fassadenflächen zieht und seine Fortsetzung in großen Pergolastrukturen auf den Dachterrassen und im Innenhof findet. Es verleiht dem Gebäude zugleich eine industrielle als auch offene Anmutung und dient darüber hinaus dazu, die Bauabschnitte mit dreidimensionalen, „hängenden Gärten“ attraktiv zusammenzubinden. Die begrünten Pergolen dienen der Verbesserung des Stadtklimas.







Fassade
Die Fassade wird als Bandfassade mit außenliegendem Sonnenschutz realisiert. Durch dieses bewährte System können die jeweiligen Fassadenbereiche sehr kostengünstig und individuell auf Sonneneinstrahlung und Wärmeschutz ausgelegt werden. Die Fenster sind manuell zu öffnen und werden zur aktiven Raumlüftung herangezogen. Jedes Fassadenelement wird in Holzrahmenbauweise komplett im Werk vorgefertigt und auf der Baustelle in den Holzskelettbau eingehoben.

© Auer Weber / Hahn Wensch Architekten / Jonas Bloch
Büroensemble - Stuttgart Feuerbach
Ort: Kruppstraße 30, Stuttgart Feuerbach
Mehrfachbeauftragung: 2021
Ausloberin: Wöhr + Bauer GmbH
Größe: 35.500 m2 BGF
Arbeitsgemeinschaft mit Auer Weber Architekten
Landschaftsarchitektur von mk. landschaft München
Kontakt
Aberlestr. 18
81371 München
Fon 089 .3 07 07.800
Fax 089 .3 07 07.898
Mehrfachbeauftragung 2021


Städtebauliche Einfügung
Die Gewerbeansiedlung Feuerbach Ost hat die Chance, sich durch die jüngsten Immobilieninvestitionen zu einem lebendigen Büro- und Gewerbestandort zu entwickeln. Der Standort besitzt den Charme hoher baulicher Dichte in direktem Kontrast zu den sanften grünen Weinberghügeln im Nordosten, eine Dualität, die prägend für Stuttgart ist und den besonderen Charakter des Stadtbilds ausmacht. Diese Qualitäten – hochverdichtete, kompakte Bebauung auf der einen Seite und eine üppige Kulturlandschaft auf der anderen Seite – werden in unserem Entwurf in Form einer gebauten Topografie programmatisch herausgearbeitet.










Erschließung / Nutzungsverteilung
Herzstück der Anlage ist die über der Produktions- und Laborzone angeordnete große ‚Grüne Plattform‘, an die alle Treppenkerne angeschlossen sind und die insbesondere an warmen Tagen zur Mittagszeit zum lebendigen Marktplatz wird. Die ebenfalls auf diesem Niveau angeordnete Mitarbeiter-Kantine mit Außengastronomie wird zugleich Pausentreff und Geheimtipp für die umgebenden Gewerbebetriebe und Firmen.







© Auer Weber / Hahn Wensch Architekten / Jonas Bloch
Architektonisches Konzept
Die Volumina zusammenfassendes, Ordnung gebendes Element ist ein großformatiges Rahmenwerk, das sich über die gesamten Fassadenflächen zieht und seine Fortsetzung in großen Pergolastrukturen auf den Dachterrassen und im Innenhof findet. Es verleiht dem Gebäude zugleich eine industrielle als auch offene Anmutung und dient darüber hinaus dazu, die Bauabschnitte mit dreidimensionalen, „hängenden Gärten“ attraktiv zusammenzubinden. Die begrünten Pergolen dienen der Verbesserung des Stadtklimas.







Fassade
Die Fassade wird als Bandfassade mit außenliegendem Sonnenschutz realisiert. Durch dieses bewährte System können die jeweiligen Fassadenbereiche sehr kostengünstig und individuell auf Sonneneinstrahlung und Wärmeschutz ausgelegt werden. Die Fenster sind manuell zu öffnen und werden zur aktiven Raumlüftung herangezogen. Jedes Fassadenelement wird in Holzrahmenbauweise komplett im Werk vorgefertigt und auf der Baustelle in den Holzskelettbau eingehoben.

© Auer Weber / Hahn Wensch Architekten / Jonas Bloch
Büroensemble - Stuttgart Feuerbach
Ort: Kruppstraße 30, Stuttgart Feuerbach
Mehrfachbeauftragung: 2021
Ausloberin: Wöhr + Bauer GmbH
Größe: 35.500 m2 BGF
Arbeitsgemeinschaft mit Auer Weber Architekten
Landschaftsarchitektur von mk. landschaft München
Kontakt
Aberlestr. 18
81371 München
Fon 089 .3 07 07.800
Fax 089 .3 07 07.898